BIM CONTENT DEVELOPMENT AND BIM CONTENT MANAGEMENT FOR MANUFACTURERS IN THE AEC INDUSTRY

AUTHOR: Effrosyni Chantzidou

TUTORS: Prof.ssa Paola Ronca

INTERNSHIP: ALUMIL SA- Greece

MASTER: Master in “BIM management in Construction Works” a.a 2022/23

  

Il BIM è considerato il cuore della digitalizzazione per il settore edile e sta cambiando i flussi di lavoro, i metodi, i processi e gli strumenti utilizzati nell’industria delle costruzioni. Consente la collaborazione attraverso la catena di fornitura e di conseguenza, il settore edile, gli architetti e i committenti richiedono più spesso versioni digitali dei prodotti da costruzione, generici o specifici del produttore. L’industria manifatturiera dei prodotti per l’edilizia è altamente competitiva, pertanto è davvero importante che i produttori possano differenziare i loro prodotti quando partecipano a gare d’appalto per progetti BIM e ottenere l’accesso a nuovi mercati.

Finestre come oggetti BIM per lo sviluppo delle BIM Libraries

Oggi più che mai, i produttori  del settore edile affrontano una sfida significativa in questa nuova era ed è essenziale per loro sviluppare i propri prodotti in versioni digitali nel formato corretto, nella fase appropriata del processo di progettazione e al giusto livello di dettaglio. Se i loro prodotti vengono rilasciati in formati BIM, si possono ottenere maggiori opportunità di integrazione del prodotto nel processo BIM.

Secondo i principi BIM qualsiasi oggetto da costruzione utilizzato in un modello digitale dovrebbe corrispondere a qualcosa nella realtà. Il produttore è l’unico attore responsabile della fornitura dei dati relativi al prodotto reale. Alla fine della fase di costruzione qualsiasi oggetto digitale deve rappresentare un prodotto fisico reale che dovrebbe soddisfare i requisiti stabiliti nel mondo digitale ma anche assicurarsi che tali requisiti corrispondano alla realtà.

 

Dopotutto, le informazioni sul prodotto che verrebbero fornite negli Asset Information Models e poi utilizzate dagli utenti finali, dovrebbero essere informazioni fornite dai produttori, che sono la fonte di informazioni più credibili sui prodotti che fabbricano.

I produttori nel settore edile, per essere integrati nei processi BIM e partecipare ai nuovi flussi di lavoro collaborativi, sono sfidati a sviluppare e gestire i propri contenuti BIM in modo strutturato e accurato.

Per mantenere l’ambito pertinente e supportato da un flusso di lavoro di esempio reale, il presente documento di tesi fornisce un caso di studio reale per un produttore leader di finestre, porte e facciate continue in alluminio nell’Europa sudorientale, ALUMIL SA, dove l’autore ha svolto la sua tesi. Per promuovere l’efficienza in tutta l’organizzazione, ALUMIL SA ha avviato diversi progetti di ricerca e implementazione per realizzare una libreria BIM strutturata dei suoi prodotti digitali, gestire i propri dati nel modo più strutturato e distribuirli ai propri clienti nel settore AEC. All’azienda era chiaro di dover agire in modo proattivo per soddisfare i nuovi standard nel settore edile.

La linea principale della strategia digitale di Alumil è basata sull’ottimizzazione dei propri dati e sulla trasformazione delle informazioni relative ai prodotti in una potente risorsa in grado di apportare vantaggi al proprio marchio.

 

Per poter procedere con l’implementazione BIM è stato realizzato un accurato business plan. La direzione generale era consapevole dell’investimento ed era anche convinta che ne valesse la pena. La cultura BIM e l’investimento nella tecnologia come hardware e software sono stati i principi di base per l’implementazione del BIM. La formazione e lo sviluppo continuo del team coinvolto nello sviluppo e nella gestione del contenuto BIM sono stati molto importanti dal momento che si è deciso di procedere allo sviluppo interno dei prodotti digitali dell’azienda.

BIM implementation plan

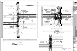
Gli oggetti BIM all’interno delle famiglie Revit sono i più richiesti nel settore edile ed è stata una grande sfida svilupparli poiché le finestre e le porte sono considerate quelle con la geometria più complessa. La creazione e la gestione dei contenuti di Revit, e in particolare di finestre e porte, è tra le attività più difficili da apprendere e padroneggiare.

Quando si lavora con gli strumenti BIM, i vantaggi come le capacità parametriche di tutte le geometrie e i dati inclusi in tali oggetti sono i più importanti da affrontare.

 

Case study -sviluppo di contenuto BIM per progetto

 

BIM Content Development-Case study per lo sviluppo di contenuto BIM per progetto

Le informazioni inclusi negli oggetti BIM possono essere utilizzate per vari scopi come la pianificazione, il consumo di energia e molto altro. La gestione dei dati relativi alle informazioni sugli edifici è un processo continuo che inizia nella fase concettuale e continua durante tutto il processo di costruzione.

Oltre alla creazione di una libreria BIM dei prodotti di portafoglio, c’era un’enorme richiesta di progetti personalizzati con requisiti specifici e sviluppati all’interno del processo BIM. La richiesta principale proveniva dall’Arabia Saudita per progetti di grandi dimensioni in cui i risultati finali dovessero rispettare standard e specifiche limitate.

Un’altra grande sfida che ha dovuto affrontare l’azienda è stata la gestione del contenuto BIM sviluppato.

È difficile tenere traccia di tutto il contenuto accumulato da progetto a progetto e dell’enorme numero di tipologie che sono state create e vengono continuamente create per tutto il suo portafoglio di prodotti.  A questo proposito è stato fondamentale l’utilizzo di una piattaforma di gestione di contenuto specifica che ha contribuito ad automatizzare i flussi di lavoro e a mantenere aggiornato il contenuto.

Inoltre, il contenuto sviluppato è stato pubblicato su vari canali, come siti web piattaforme BIM, e reso disponibile per gare pubbliche. Ciò ha aiutato a raccogliere statistiche e fornire analisi dei dati e ha consentito all’azienda ulteriori vendite e a migliorare ulteriormente il proprio contenuto BIM.

Il prossimo obiettivo più importante per l’azienda è ottenere il BSI Kitemark per gli oggetti BIM. Il BSI Kitemark garantisce che le rappresentazioni digitali dei prodotti utilizzati nel settore dell’ambiente costruzione siano accurate, forniscano le informazioni giuste e siano adatte allo scopo. Può essere un ottimo modo per differenziare un’organizzazione in un mercato estremamente competitivo.

Concludendo, il BIM si sta diffondendo sempre di più in tutto il mondo, ponendo i produttori del settore Built Environment nella condizione di fornire informazioni accurate su oggetti e prodotti digitali.

L’adozione del BIM da parte dei produttori del settore edile può consentire una crescita senza precedenti. Dall’acquisizione di più affari alla riduzione delle rilavorazioni, al miglioramento dei margini e alla riduzione dei rischi, è giunto il momento per i produttori di adottare pienamente la tecnologia BIM.

 

FOR INTERNATIONAL STUDENTS:

BIM is considered the heart of digitalization for the construction industry and is changing the AEC workflows, methods, processes, and tools. Enables collaboration through the supply chain. As a result, the construction industry, architects, and specifiers are increasingly requiring digital versions of building products, whether generic or manufacturer specific. The manufacturing Industry for building products is highly competitive, therefore it’s really important that manufacturers can differentiate their construction products when tendering for BIM projects and gain access to new markets.

More than ever today, building product manufacturers face a significant challenge in this new era and is essential for them to develop their products in digital versions in the correct format at the appropriate stage of the design process and at the right Level of Detail. If their products are delivered in BIM formats, then increased opportunities for product integration in the BIM process can be achieved.

According to the BIM principles any construction object used in a digital model should correspond to something in reality. The manufacturer Is the only actor fully responsible for suppling data about the real product. At the end of the construction phase any digital object has to represent a real physical product which should comply with requirements set in the digital world but also make sure that these requirements correspond with reality.

After all, the product information that would be delivered in Asset Information Models and then used by the end users, should be information provided by the manufacturers, who are the most credible source of information about the products they fabricate as they already follow robust processes for defining the information about their assets.

Building product manufacturers in order to be integrated in the BIM processes and participate in the new collaborative workflows are challenged to develop first and then manage their BIM content in a structured and accurate way.

To keep the scope relevant and backed by true example workflow, the present thesis paper provides evidence in the form of a real case study for a Windows, Doors, and aluminum Curtain Wall leader manufacturer in the Southeast Europe, ALUMIL SA where the authors stage took place. To drive efficiency throughout the entire organization, ALUMIL SA initiated several research and implementation projects to achieve a structured BIM Library of its digital products, manage its data in the best structured way and distribute them to its clients in the AEC industry. It was clear in the company that had to act proactively to meet the new standards in the construction industry.

The main line of Alumil’s digital strategy was based on optimizing its data and turning its product information into a powerful asset that can deliver benefits to its own brand.

Before proceeding within BIM implementation an accurate business Plan was made. The general management was aware of the investment and also convinced that it’s worth it. BIM culture and strong investment in technology such as hardware and software were the basic principles for BIM Implementation. Education and continuous development   of the team that was involved with the BIM content development and management was very important since an Inhouse development of its digitals products was decided   to proceed   with.

BIM objects within Revit families are the most requested in the building industry and it was a great challenge to develop them since windows and doors are considered to have the most complex geometry. Creating and managing Revit content and particularly windows and doors is among the hardest tasks to learn and master.

When working with BIM tools the benefits such as the parametric capabilities of all the geometries and the data hosted in those objects are the most important to deal with.

The information hosted in the BIM objects can be used for various purposes like scheduling, consumption of energy and much more.  Managing building information data is an on-going process which starts at the conceptual stages and continues throughout the construction process.

Besides the creation of a standard product-based BIM library there was a huge demand for custom projects with specific requirements and developed within BIM process. The main demand came from Saudi Arabia for huge projects where the deliverables should respect standards and restricted specifications.

Another great challenge that had to deal with the company was the management of the developed content. It could be overwhelming to keep track of all the content that has been accumulated from project to project and from the huge number of typologies that have been created and continuously being created for all its product portfolio.

A Bim Content Management solution utilizing a specific platform was very crucial and helped automate the workflows and keep the BIM Content up to date.

Furthermore, the content has been published on various channels such as websites, BIM platforms and made it available for public tenders.  That helped collect statistics and provide data analytics and let the company open new sales and further improve its BIM Content.

The very next most important goal for the company is to obtain the BSI Kitemark for BIM Objects. The BSI Kitemark ensures that the digital representations of products used in the built environment sector are accurate, provide the right information and are fit for purpose. It can be a great way to differentiate an organization in a hugely competitive market.

In conclusion, BIM is spreading more and more throughout the world, placing manufacturers in the Built Environment sector increasingly in a position to provide accurate information on digital objects and products.

Adopting BIM as a manufacturer for building products can allow for unparalleled growth. From winning more business to reducing rework, to improving margins and lowering risk is time for manufacturers to fully adopt BIM technology.